Torstenssonsgatan 4 · 200 m²

Top floor på Torstenssonsgatan 4!
TILLTRÄDE Enligt överenskommelse
AVTAL 3 år

OMGIVNING & KOMMUNIKATION

Ett flertal restauranger i närområdet på Narvavägen, Riddargatan och Storgatan. Ica på Riddargatan finns runt hörnet. Busstrafik och spårbunden trafik från Djurgårdsbron, ca 100 meter från lokalen.

Area200 m²
Våningsplan4 av 5
TillträdeEnligt överenskommelse
KontraktFörsta hand
Ventilation
Internet Fiber
Byggnadsår1897
Ombyggnadsår

Top floor på Torstenssonsgatan 4!

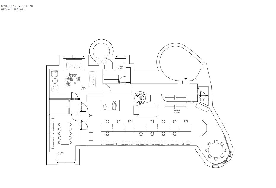
Torstenssonsgatan 4 erbjuder vi nu en lokal högst upp i huset om totalt ca 201 kvm. En väldigt effektiv planering med en stor öppen planlösning och med bra tillhörande arbetsrum/samtalsrum. Går även att öppna upp lokalen ytterligare för att ändra om flödet. Separat pentry samt 2 WC varav en större med dusch. Tillträde enligt överenskommelse eller omgående. Avtalstid 3 år eller ett mer flexibelt upplägg. Varmt välkommen på visning!

Bussar:Innerstadsbussar från Djurgårdsbron

KONTAKTPERSON

Gustav Hellströmer

Leasing Manager

070-963 46 71

gustav@newproperty.se

Hiss