Kungsgatan 28 · 210 m²

Modern och yteffektiv kontorslokal på attraktiv adress!
TILLTRÄDE Enligt överenskommelse
AVTAL 1-3 år

OMGIVNING & KOMMUNIKATION

Direkt tillgång till ett brett utbud av lunchrestauranger, caféer, gym och shopping. MOOD-gallerian, Hötorgets saluhall och Vete-Katten finns inom ett par minuter. Tunnelbana vid Hötorget och T-Centralen nås enkelt till fots.

Area210 m²
Våningsplan5 av 7
TillträdeEnligt överenskommelse
KontraktAndra hand
VentilationMekanisk ventilation med kyla
Internet Fiber finns i lokalen
Byggnadsår1924

Modern och yteffektiv kontorslokal på attraktiv adress!

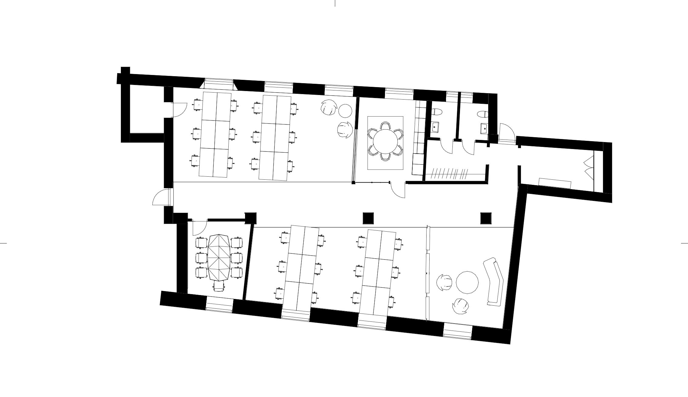
Välkommen till en representativ kontorslokal om ca 210 kvm belägen på våningsplan 5 i en av Stockholms mest eftertraktade adresser. Lokalen erbjuder en yteffektiv planlösning med ett ljust och öppet arbetslandskap. Det finns två representativa mötesrum, perfekt för både interna och externa besök. Det trevliga pentryt är nyrenoverat och utgör en naturlig samlingspunkt. Lokalen har även två fräscha wc:s och genomgående ljusinsläpp! Lokalen kan hyras under en flexibel avtalstid!

T-bana:Hötorget eller Östermalmstorg - Grön och Röd linje
Bussar:Flertalet busslinjer i området
Pendeltåg:Centralstationen 10 min

KONTAKTPERSONER

Gustav Björkman

Leasing Manager

072 887 30 83

gustav.bjorkman@newproperty.se

Rikard Améen

Head of Leasing Office

073-688 40 78

rikard@newproperty.se

Hiss