Illervägen 3 · 500 - 4000 m²

Butikslokal med bra exponering i Ersboda Handelsområde
TILLTRÄDE Enligt överenskommelse/Snarast
AVTAL

OMGIVNING & KOMMUNIKATION

Här finns ett flertal stora och välbesökta butikskedjor, till exempel Systembolaget, Coop, NetOnNet, Biltema, Team Sportia, Rusta och Jysk.

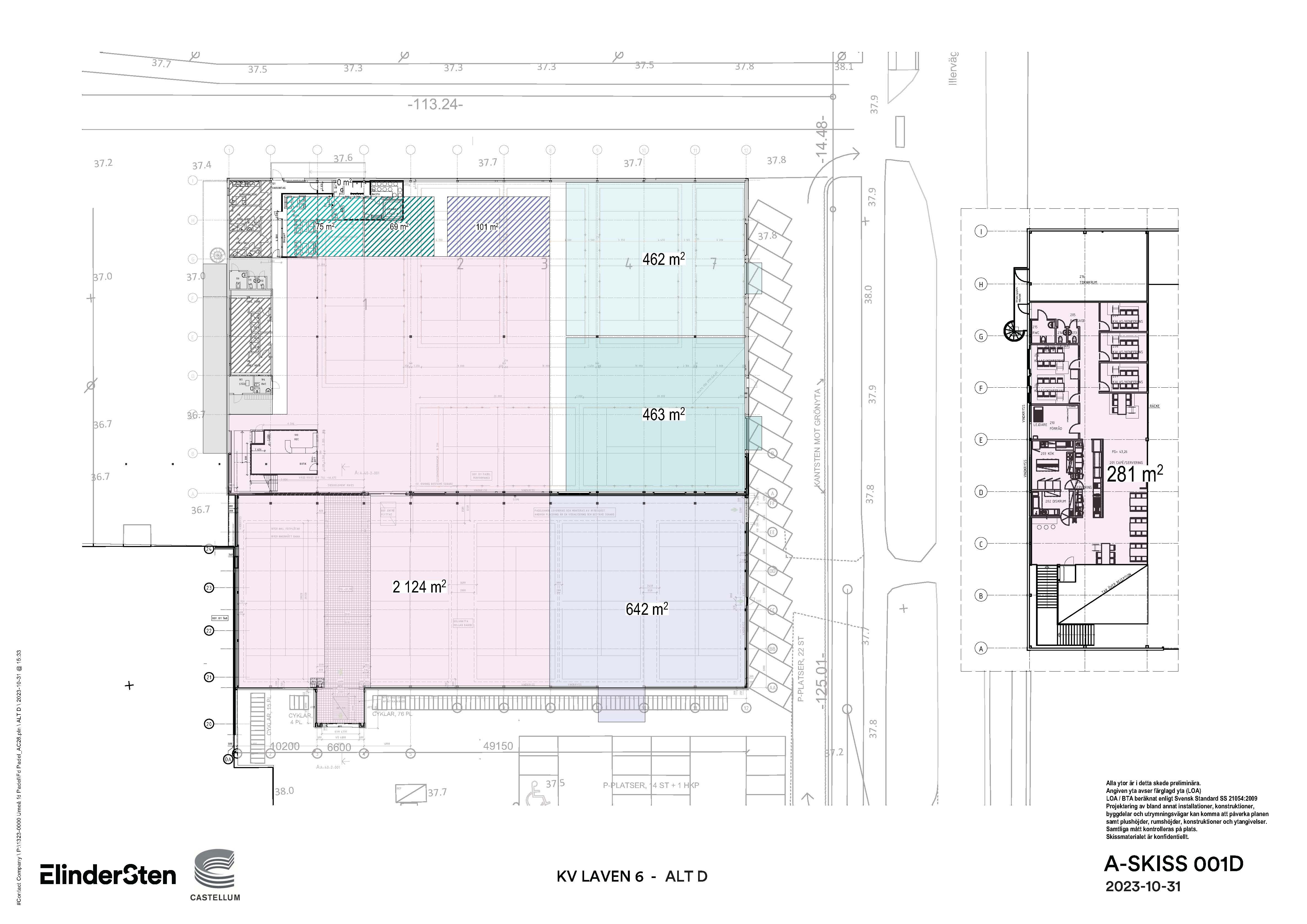
Area500 - 4000 m²
Våningsplan0
TillträdeEnligt överenskommelse/Snarast
KontraktFörsta hand
Byggnadsår2015

Butikslokal med bra exponering i Ersboda Handelsområde

Nu finns möjlighet att finnas i Umeås största handelsområde: Ersboda Lokalen har generös takhöjd, god synlighet ut mot E12:an och är lättillgänglig med både kollektivtrafik och bil. Lokalen är belägen i ett väletablerat kluster av sällanköpshandel och dagligvaror, vilket ger goda förutsättningar för verksamheter som söker naturliga kundflöden. Urval grannar: Coop, Biltema, Rusta, NetonNet och Jysk, med ÖoB och Electrolux Home närmast. Varmt välkommen på visning!

Trafikleder:E4 & E12

KONTAKTPERSON

Millandra Lindström

Leasing Manager

070-602 30 76

millandra@newproperty.se