Björns Trädgårdsgränd 1 · 429 m²

Öppen kontorslokal med industrikaraktär vid Medborgarplatsen!
TILLTRÄDE Enligt ök
AVTAL 3 år

OMGIVNING & KOMMUNIKATION

All tänkbar service i direkt närhet runt Medborgarplatsen.

Area429 m²
Våningsplan2 av 5
TillträdeEnligt ök
KontraktFörsta hand
VentilationMekanisk ventilation med kyld tilluft
Internet Fiber
Byggnadsår1929

Öppen kontorslokal med industrikaraktär vid Medborgarplatsen!

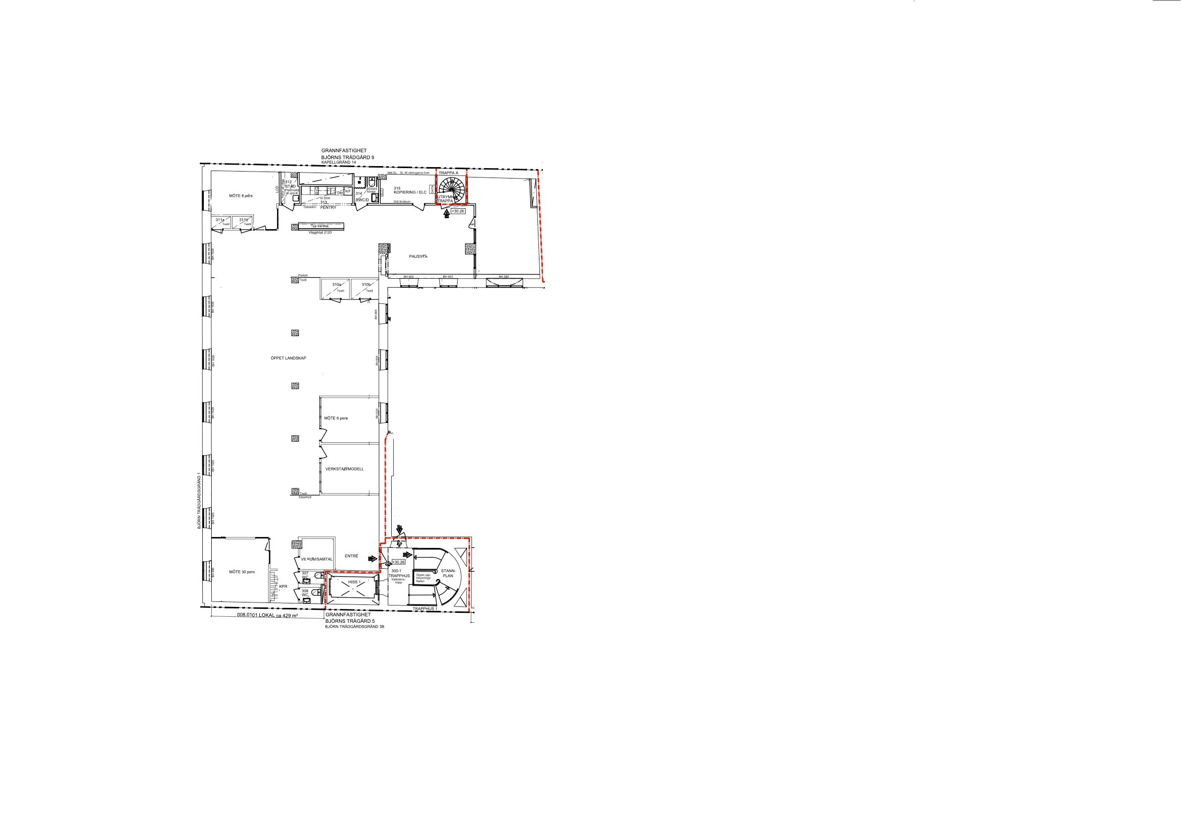
Ljus och karaktärsfull lokal mitt på Söder! På Björns trädgårdsgränd 1 finns nu möjlighet att hyra en rymlig och ljus lokal om ca 428 kvm, belägen 2 trappor upp. Lokalen har en härlig industrikänsla med högt i tak, stora fönsterpartier och en öppen planlösning som gör den flexibel för flera typer av verksamheter – perfekt för kontor, showroom, studio eller kreativt bolag. -Ca 429 kvm, 2 tr -Öppen och lättmöblerad planlösning. -Högt i tak och industrikaraktär -3 WC varav en större med dusch. -Generöst med ljusinsläpp från två väderstreck -Fönster mot både Björns Trädgård och lugn innergård Fastigheten & gården Trevlig innergård som kan nyttjas av hyresgäster Cykelparkering på innergården. Tillträde Från 1/3 eller enligt överenskommelse. Avtalstid 3 år. Varmt välkommen på visning!

T-bana:Grön linje från Medborgarplatsen, ca 100 meter från entrén

KONTAKTPERSON

Gustav Hellströmer

Leasing Manager

070-963 46 71

gustav@newproperty.se

Cykelparkering
Hiss