Norgegatan 1 · 652 m²

Ljusa fina lokaler nära Kista Galleria och Kista Tower!
TILLTRÄDE Enligt överenskommelse
AVTAL 3 år eller längre

OMGIVNING & KOMMUNIKATION

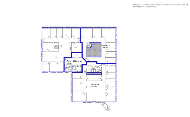
Area652 m²
Våningsplan2 av 4
TillträdeEnligt överenskommelse
KontraktFörsta hand
VentilationMekanisk ventilation med kyla
Internet
Byggnadsår1992
Ombyggnadsår

Ljusa fina lokaler nära Kista Galleria och Kista Tower!

Ljus och fin lokal med stora möjligheter. En del av huset har ett atrium vilket ger en luftig och fin känsla. Huset är pelarbyggt vilket möjliggör stor flexibilitet gällande specifika anpassningar för ert företag. Fint garage med ca: 10 p platser. Egen infart. Utanför finns även ett 50 tal parkeringsplatser. Ca: 10 minuters gångväg till Kista Galleria och T-bana. Möjlighet att hyra hela huset!

T-bana:Kista
Bussar:Ja flertalet bussar

KONTAKTPERSON

Marcus Fond

Leasing Manager

070-775 58 19

marcus.fond@newproperty.se

Garage
Cykelparkering