Drottninggatan 95A · 664 m²

Unik lokal i anrik fastighet
TILLTRÄDE Enligt överenskommelse
AVTAL 3 år eller längre

OMGIVNING & KOMMUNIKATION

Stort utbud av restauranger och kaféer, god service på Drottninggatan och Sveavägen samt kring Odenplan.

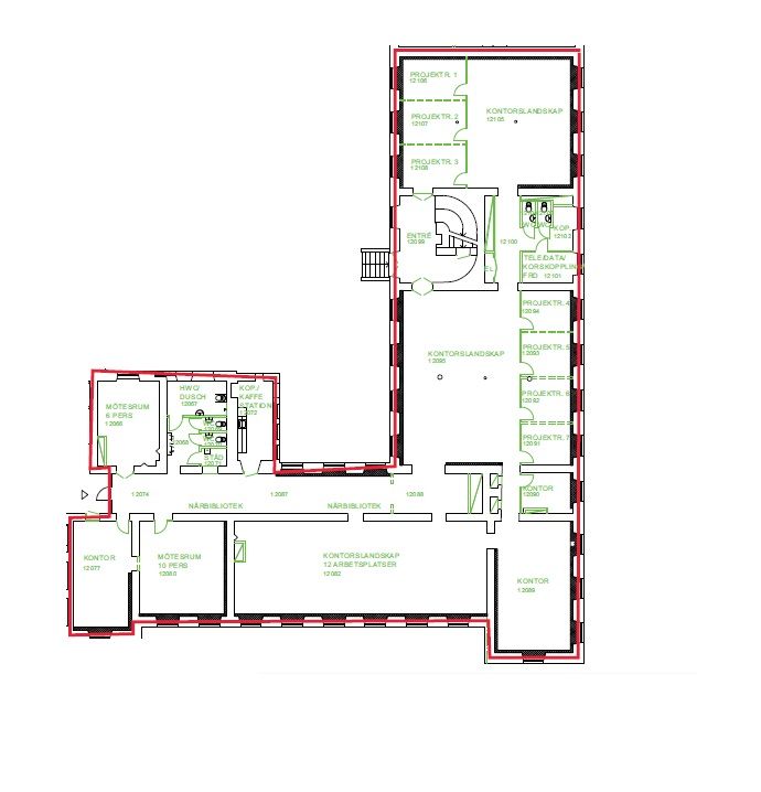
Area664 m²
Våningsplan1 av 4
TillträdeEnligt överenskommelse
KontraktFörsta hand
VentilationMekanisk från- och tilluft med kyla.
Internet Ja, stokab finns i källaren
Byggnadsår1894
Ombyggnadsår2008

Unik lokal i anrik fastighet

Högt i tak, stora fönster och yteffektivt. Detta drömkontor har en bra blandning av mötesrum, arbetsplatser och plats för stora samlingar. Öppna kontorslandskap med härlig rymd. Några mindre mötesrum/enskilda rum kombinerat med större konferensrum. Två möjliga entréer. Ett mycket trevligt kontor i en anrik fastighet med härlig karaktär. Lokalerna anpassas i samråd med ny hyresgäst.

T-bana:Rådmansgatan och Odenplan
Bussar:Flertalet bussar
Pendeltåg:Odenplan
Trafikleder:DU tar dig snabbt ut på lederna

KONTAKTPERSON

David Werner

Head of Leasing Office, Partner

073-384 98 40

david@newproperty.se