Storängstorget 21 · 246 m²

Mycket välplacerad butikslokal vid Storängstorget vid Åkersberga Centrum. Hyra ca 41.000kr/månad + moms.
TILLTRÄDE Omgående eller enligt överenskommelse
AVTAL 3 till 5 årigt hyresavtal direkt med fastighetsägaren

OMGIVNING & KOMMUNIKATION

Granne med Åkersberga centrum som är ett fullutrustat centrum med butiker, restauranger, gym, frisörer, flera livsmedelsbutiker, hotell samt all typ av kommunal service. m.m. Det finns ett flertal p-garage i närområdet.

Area246 m²
TillträdeOmgående eller enligt överenskommelse
KontraktFörsta hand
VentilationMekanisk ventilation
Internet Ja, finns i lokalen
Byggnadsår1954
Ombyggnadsår1995

Mycket välplacerad butikslokal vid Storängstorget vid Åkersberga Centrum. Hyra ca 41.000kr/månad + moms.

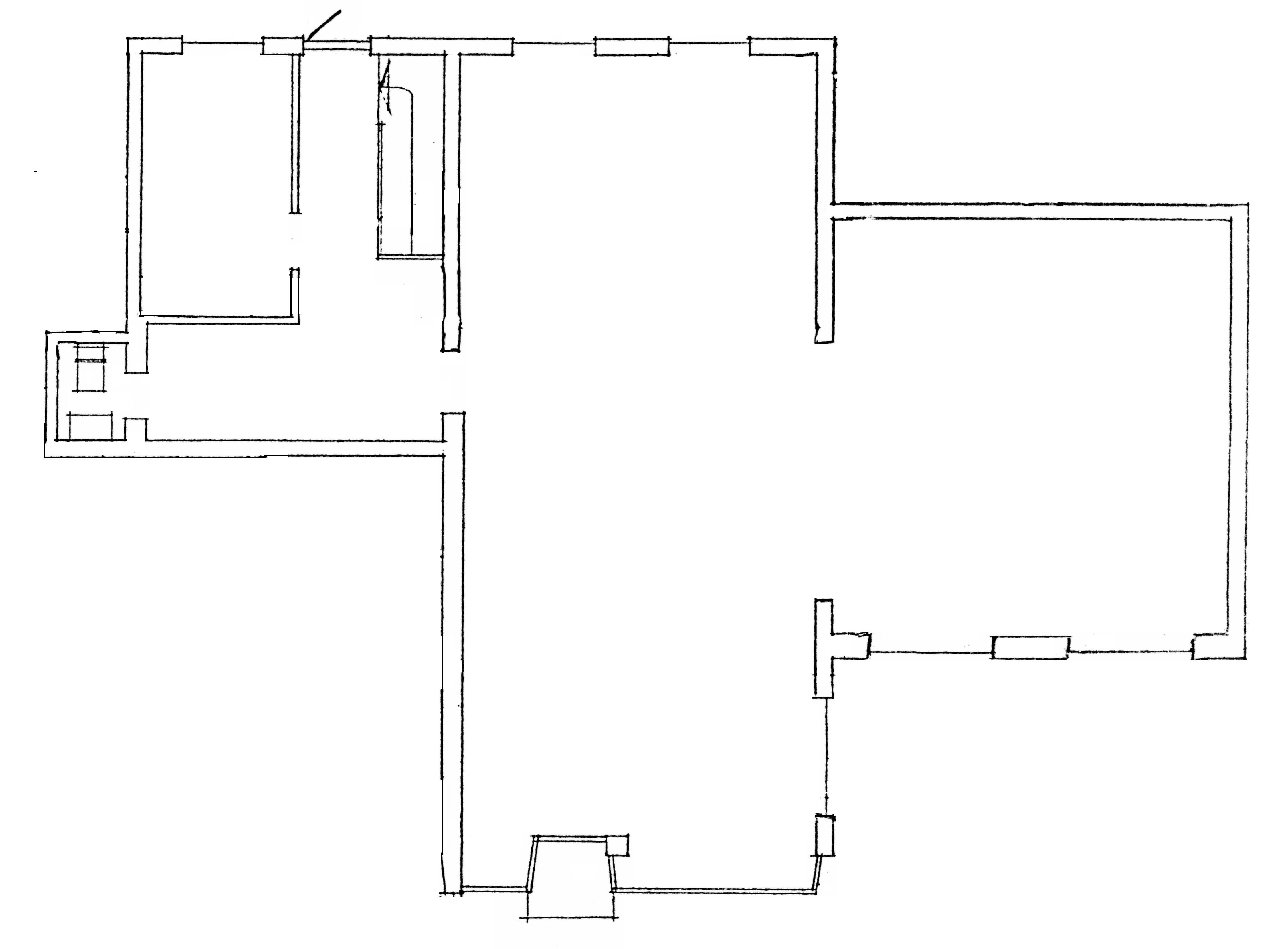
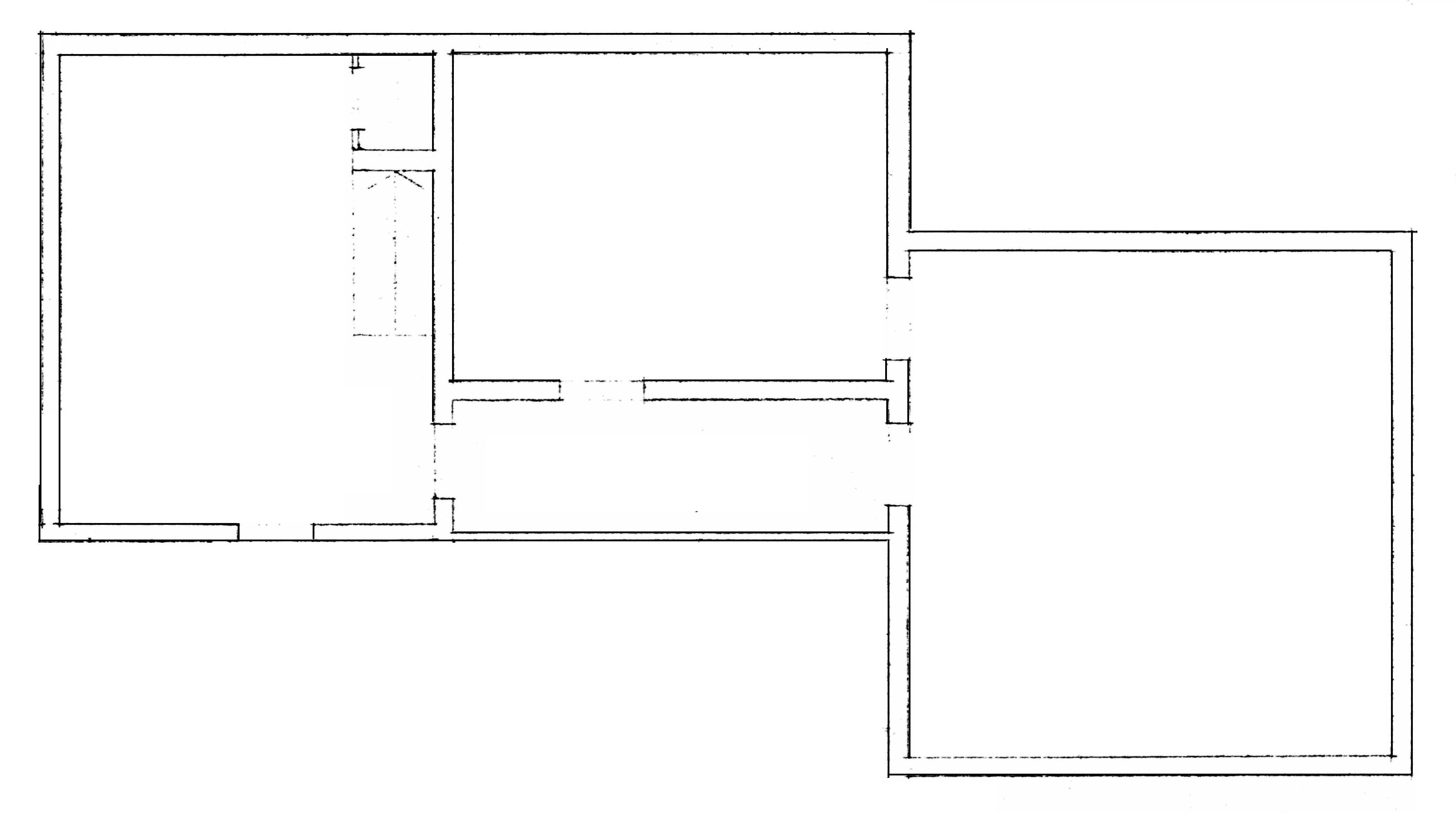
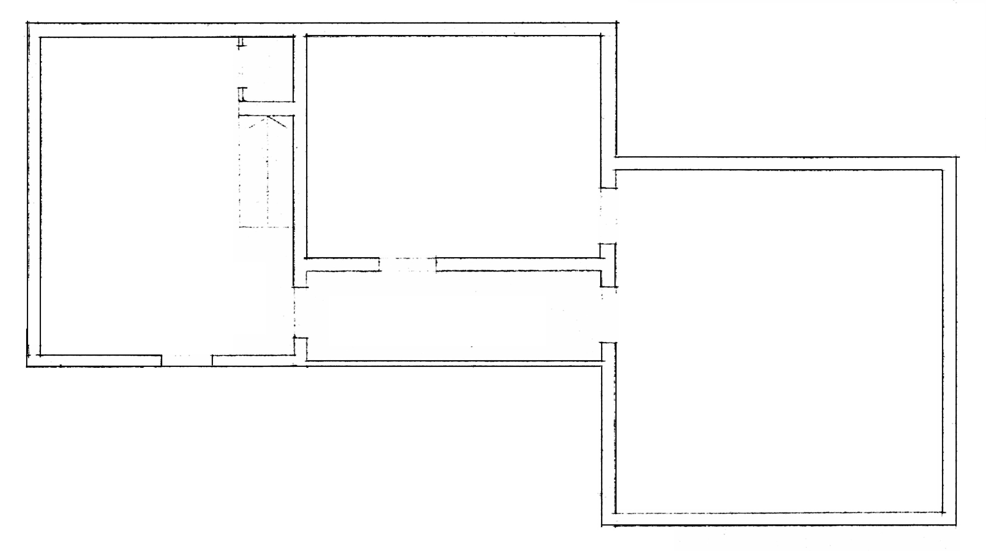
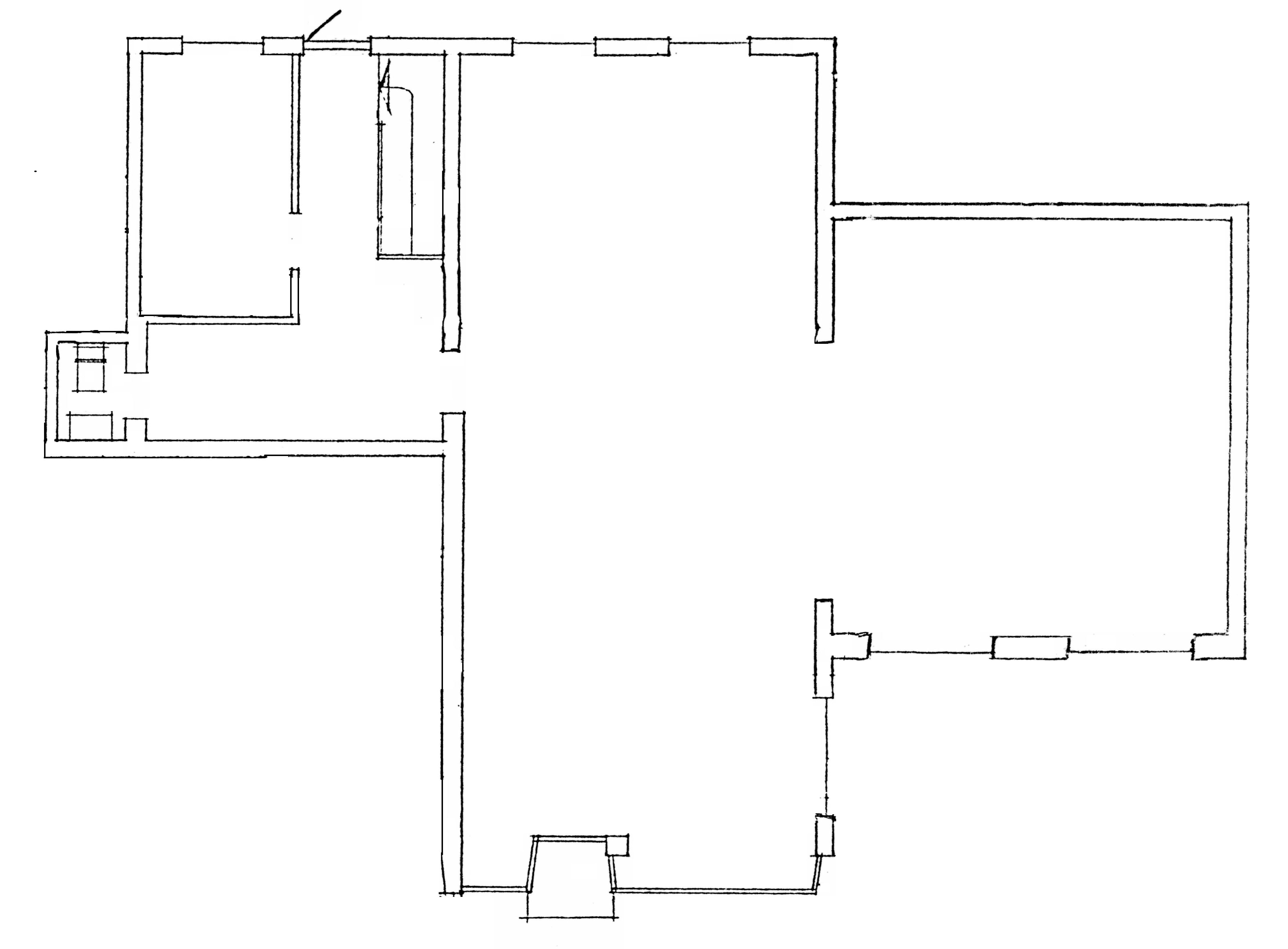
På Storängstorget med Åkersberga centrum som granne ligger denna butikslokal med stora väl synliga skyltfönster mot Storängstorget. Det har tidigare varit mäklarkotor och innan det El och lampbutik. Lokalen går att anpassa till många olika verksamheter. Fatigheten ligger mycket centralt i Åkersberga och det är ca 3 minuterspromenad till Roslagsbanan och granne med Åkersberga Centrum. Lokalen består av 3 plan totalt 246kvm. 128kvm butiksyta i gatuplan och med intern trappa till 1 tr ligger 25kvm kök och personal utrymmen. I källaren på -1 trappa finnas 93kvm som i dag används som lättlager men går att anpassa till personal och konferens ytor.

Bussar:3 minuters promenad till Åkerberga busstorg.
Pendeltåg:3 minuters promenad till Roslagsbanan

KONTAKTPERSON

Johan Swedérus

Leasing Manager

070-826 86 56

johan@newproperty.se

Cykelparkering