Beckombergavägen 11 · 379 m²

Mångsidig lokal med låg hyra - för kontor, produktion eller vård och omsorg!
TILLTRÄDE Enligt överenskommelse
AVTAL 3 år

OMGIVNING & KOMMUNIKATION

Lokalen är belägen precis intill Åkeshovs tunnelbanestation med endast ca 2 minuter att promenera. Går man ca 10 minuter så kommer man till Brommaplan där all möjlig service finns med både restauranger, butiker och bussar som tar en in till Solna/Sundbyberg eller ut till Mälaröarna. Ett stenkast därifrån finns Åkeshovs simhall med gym samt Judarskogens naturreservat med gröna promenadstråk.

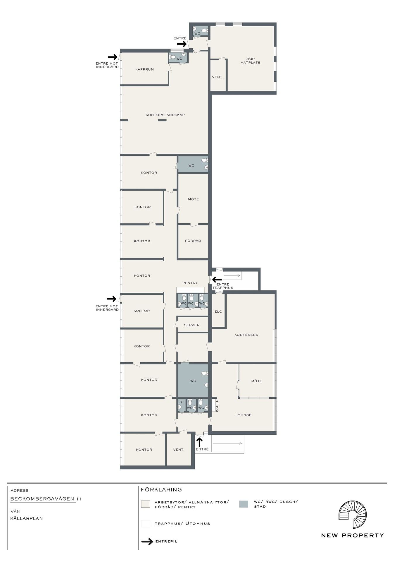
Area379 m²
Våningsplan0
TillträdeEnligt överenskommelse
KontraktFörsta hand
VentilationMekanisk till- och frånluft
Internet Ja
Byggnadsår1963
Ombyggnadsår2015

Mångsidig lokal med låg hyra - för kontor, produktion eller vård och omsorg!

Söker ni en kostnadseffektiv och flexibel lösning för er verksamhet? Nu finns chansen att hyra 379 kvm på markplan i Brommas lugna och attraktiva parkmiljö. Lokalen hyrs ut till en låg hyra och det finns möjlighet att anpassa ytan för allt från kontor och lager till produktion eller vård. Ytan på 379 kvm är idag praktiskt rumsindelad men kan med enkla medel öppnas upp för att skapa ett helt öppet landskap, allt efter era önskemål. Detta är en perfekt yta för företaget som vill kombinera kontor med lager, lättare produktion, eller etablera en vårdklinik i en lugn och tillgänglig miljö. LÅG HYRA: Endast 2200 kr/kvm/år inklusive fastighetsskatt och drift. Sänk era lokalkostnader avsevärt i ett attraktivt läge. Total månadskostnad: 69 500 kr exkl. moms. MÅNGSIDIG LOKAL: Anpassa ytan för kontor, lager, lätt produktion, showroom eller vårdverksamhet. Era behov styr! MARKPLAN & LASTNING: Enkel in- och utlastning direkt från utsidan. 4 entréer totalt till lokalen. PARKERING: Minst 1 p-plats eventuellt 2 initialt. Kan blir fler till antalet över tid. STRATEGISKT LÄGE: Nära Brommas service och stora trafikleder, med smidig access till västra och Norra Stockholm. INSPIRERANDE MILJÖ: Arbeta i en lugn, lummig omgivning med tillgång till innergårdar och konferensdel i fastigheten. Detta är en möjlighet att hyra en yteffektiv och prisvärd lokal i ett av Brommas mest trivsamma områden. Kontakta ansvarig mäklare redan idag för mer information och för att boka en personlig visning!

T-bana:Åkeshov ca 2 minuters promenad
Bussar:Brommaplan ca 10 minuter promenad
Trafikleder:Bergslagsvägen, Drottningholmsvägen

KONTAKTPERSONER

Adam Olsson

Leasing Manager

070-750 95 08

adam@newproperty.se

Marcus Fond

Leasing Manager

070-775 58 19

marcus.fond@newproperty.se

Internet