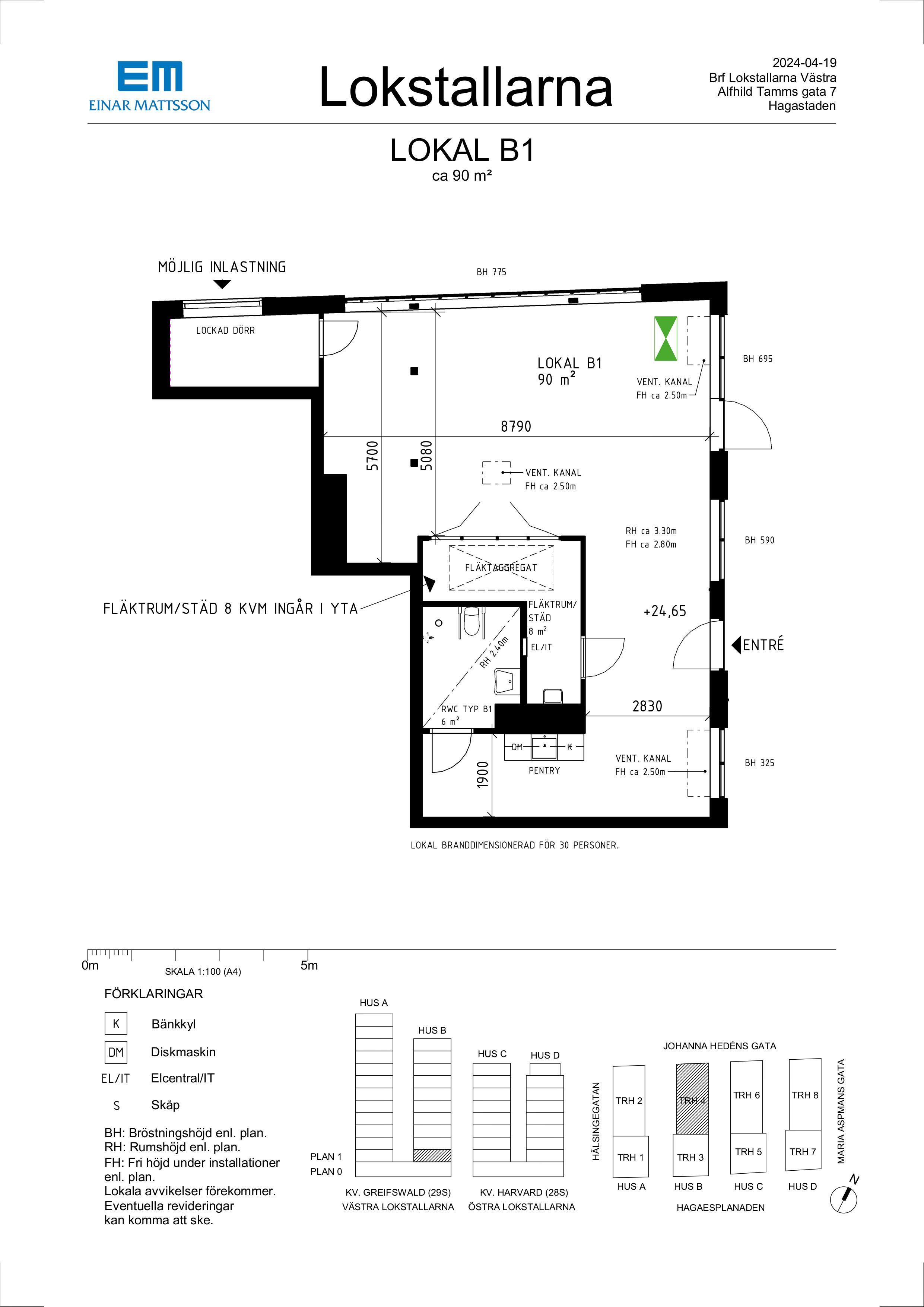
Alfhild Tamms Gata 7 · 90 m²

Nyproducerad lokal för kontor/showroom!
TILLTRÄDE Enl. överenskommelse
AVTAL 3-5 år minimum

OMGIVNING & KOMMUNIKATION

Area90 m²
Våningsplan
TillträdeEnl. överenskommelse
Kontrakt
Ventilation
Internet
Byggnadsår2025
Ombyggnadsår

Nyproducerad lokal för kontor/showroom!

I det expansiva området Hagastaden har Einar Mattsson nu genomfört sitt fjärde bostadsprojekt med ca 243 nya lägenheter samt 10 kommersiella lokaler i gatuplanet! Denna lokal vetter mot Ninni Kronbergs Gata & Alfhild Tamms Gata där du har en trappa ner till Hagaesplanaden. Dess hörnläge bidrar till god exponering och ett naturligt ljusinsläpp, vilket skapar en inbjudande och representativ miljö för både anställda och besökare. Hagastaden – Ett levande centrum för innovation Hagastaden är i dag en etablerad och dynamisk stadsdel som knyter samman Stockholm och Solna. Området är ett framstående nav för life science, forskning och innovation, beläget strategiskt mellan Vasastan, Karolinska Institutet och Nya Karolinska Sjukhuset. Här samsas moderna bostäder, kontor, service och grönområden i en hållbar stadsmiljö. Gula tunnelbanelinjen med stopp i Hagastaden beräknas rulla 2028. För mer information om Hagastaden: https://vaxer.stockholm/hagastaden Varmt välkommen att höra av dig vid intresse!

T-bana:Gula linjen beräknas öppna för trafik 2028!
Bussar:3,6,58,77,507,598,697

KONTAKTPERSON

Millandra Lindström

Leasing Manager

070-602 30 76

millandra@newproperty.se

Cykelparkering
Garage