Bränningevägen 12 · 475 m²

Prisvänlig och möblerad lokal med toppläge i Årsta!
TILLTRÄDE Q3 2025 eller enligt överenskommelse
AVTAL Enligt överenskommelse

OMGIVNING & KOMMUNIKATION

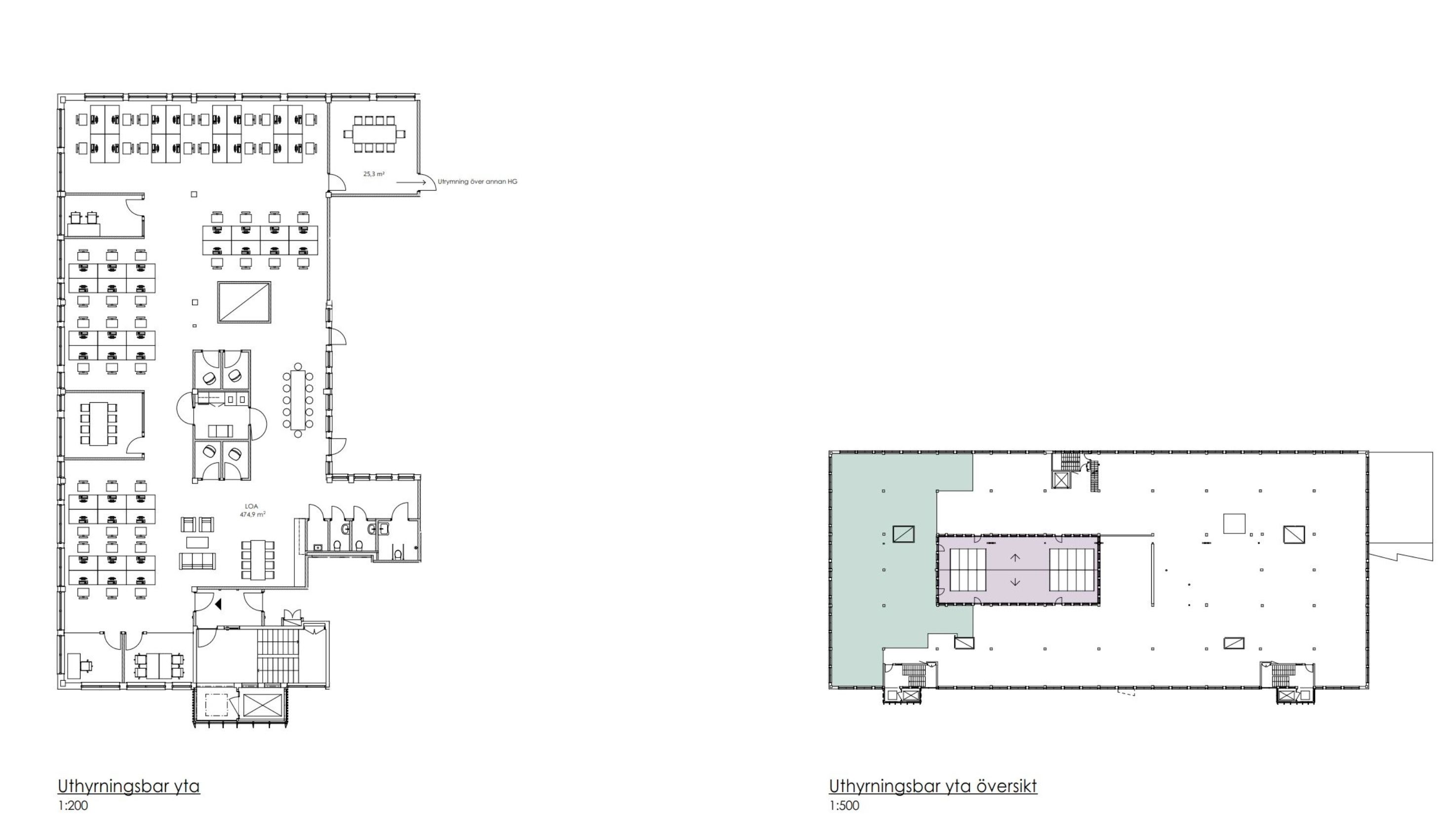
Area475 m²
Våningsplan3 av 4
TillträdeQ3 2025 eller enligt överenskommelse
KontraktAndra hand
VentilationKyld tilluft, mekanisk frånluft
Internet Fiber finns framdraget
Byggnadsår2023
Ombyggnadsår

Prisvänlig och möblerad lokal med toppläge i Årsta!

Lokal med toppläge i Årsta, nära buss och tvärbana, livsmedelsbutiker och populära lunchrestauranger. Här erbjuds en modern planlösning, möjlighet till korttidskontrakt och två månader hyresfritt samt gratis kaffe i 12 mån vid längre avtal. Lokalen har en flexibel planlösning med både öppna ytor, mindre kontorsrum och mötesrum, och delvis möblerad om så önskas. Goda parkeringsmöjligheter finns i direkt anslutning till fastigheten, inklusive elplatser.

T-bana:Grön linje till Gullmarsplan
Bussar:Flertalet bussar trafikerar i området
Pendeltåg:Ja Årstaberg
Trafikleder:E4/E20, Södra länken samt väg 73.

KONTAKTPERSONER

Catia Bond

Leasing Manager

073-439 26 43

catia@newproperty.se

Adam Olsson

Leasing Manager

070-750 95 08

adam@newproperty.se

Cykelparkering
Garage