Fågelsångsvägen 32 · 783 m²

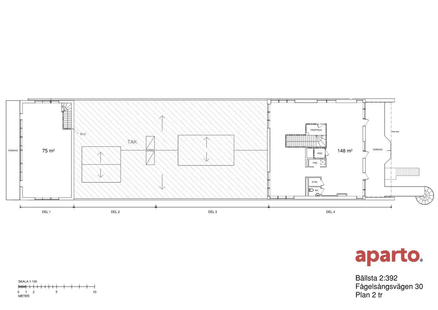
Träningslokal på 783 m² i två plan med 2 takterrasser.
TILLTRÄDE Omgående eller enligt överenskommelse
AVTAL 3 till 5 årigt hyresavtal direkt med fastighetsägaren

OMGIVNING & KOMMUNIKATION

10 minuter med bil till Vallentuna centrum eller ca 15 minuter till Arninge eller Täby centrum.

Area783 m²
Våningsplan2 av 2
TillträdeOmgående eller enligt överenskommelse
KontraktFörsta hand
VentilationMekanisk ventilation
Internet Ja
Byggnadsår1946
Ombyggnadsår2025

Träningslokal på 783 m² i två plan med 2 takterrasser.

I Bällsta industriområde ligger detta kontor i två plan med takterrasser i både öst och sydväst. Lokalen lämpar sig perfekt som träningslokal för t.ex. kampsport och dans ed. Hela fastigheten är inhägnad och har en stålgrind som är låst på nätterna. Utvändigt finns bra parkeringsmöjligheter med plats för ca 9-10 bilar. I grannlokalen finns Nova Padel med sina 4 superfina banor.

Bussar:Buss 664 går precis förbi fastigheten och närmaste hållplats ligger ca 200 meter bort
Pendeltåg:Roslagsbanan station Kragstalund Bällstaberg buss 644, 4 minuter, promenad 15 minuter
Trafikleder:Arningeleden 3 minuter

KONTAKTPERSON

Johan Swedérus

Leasing Manager

070-826 86 56

johan@newproperty.se

Cykelparkering
Internet
Hiss