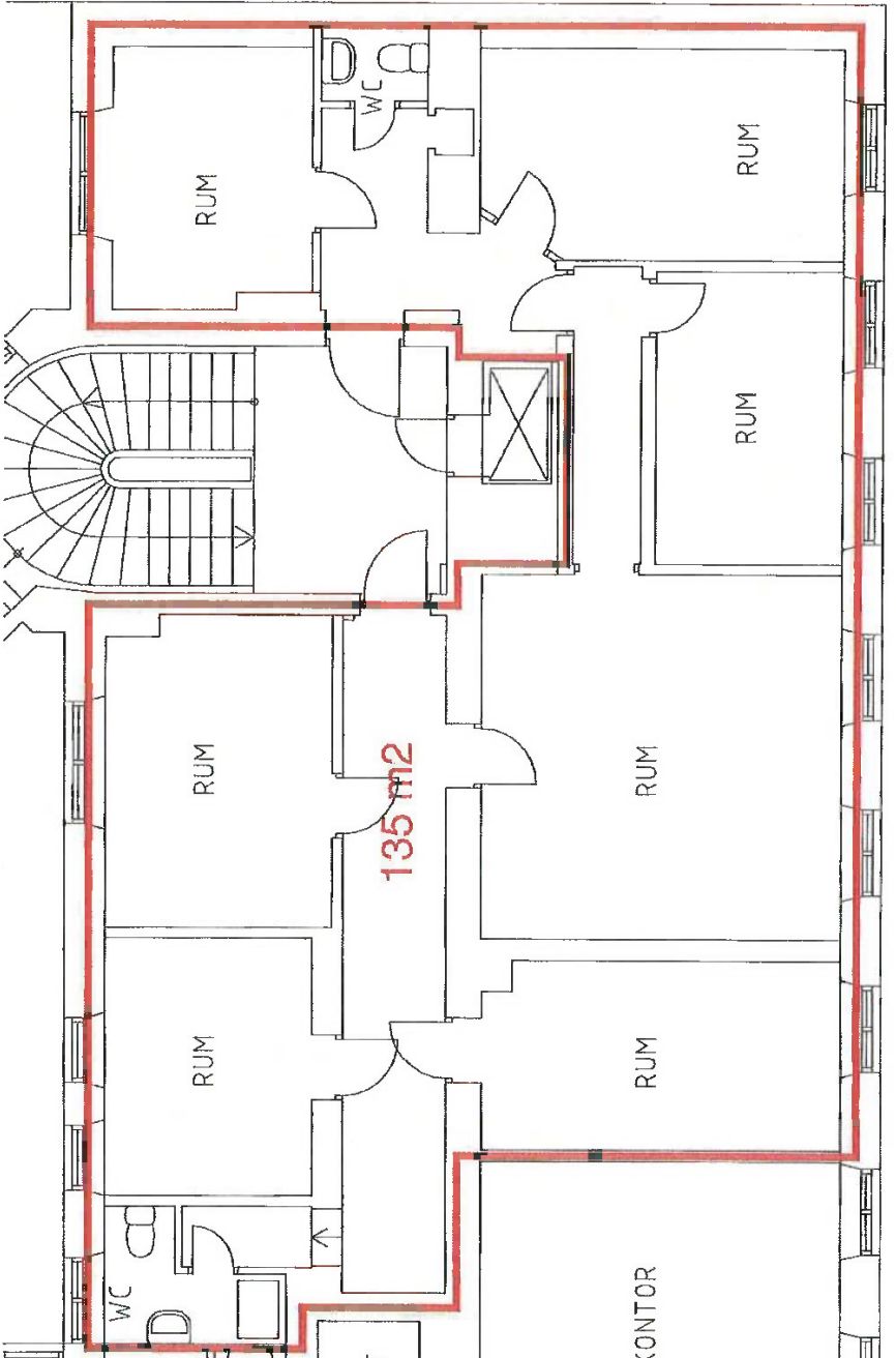
Scheelegatan 1 · 135 m²

Härlig kontorslokal med bra takhöjd!
TILLTRÄDE Q2/Q3 2025/Enligt ök
AVTAL Minst 3 årigt hyresavtal direkt med fastighetsägaren

OMGIVNING & KOMMUNIKATION

Du finns all typ av service i området: Systembolag, restauranger, caféer, gym m.m.

Area135 m²
Våningsplan1
TillträdeQ2/Q3 2025/Enligt ök
KontraktFörsta hand
Ventilation
Internet
Byggnadsår
Ombyggnadsår

Härlig kontorslokal med bra takhöjd!

Vid Kungsholmstorg finner du denna trevliga kontorslokal! Lokalen har två entréer som gör det enkelt att dela av lokalen med en extern och internt del. I övrigt så är ytan rumsindelad med bra arbetsytor, 3 st mötes/konferensrum. Det finns även 2 wcs och en dusch i lokalen. Ytskikten har precis renoverats, samt ett nytt pentry har byggts i lokalen!

T-bana:Rådhuset
Bussar:Flertalet bussar kring Kungsholmstorg
Pendeltåg:Centralstationen, 10 min promenad

KONTAKTPERSON

Marcus Christenson

Leasing Manager

070-774 07 09

marcus@newproperty.se

Hiss