Hudiksvallsgatan 6 · 1283 m²

Industriell kontorslokal med bra ljusinsläpp i en ball miljö!
TILLTRÄDE Omgående eller enligt överenskommelse
AVTAL 2026-11-30

OMGIVNING & KOMMUNIKATION

Hudiksvallsgatan 6 ligger i det expansiva området Hagastaden i Stockholm, där ett rikt serviceutbud finns i gatuplan. I närområdet finns flera restauranger, caféer och takbarer som erbjuder varierande matalternativ och sociala mötesplatser. Flera gymkedjor, inklusive ett med utomhusgym på taket med utsikt över stadens skyline, finns också i området. Dessutom finns flera 4-stjärniga hotell och välrenommerade livsmedelsbutiker.

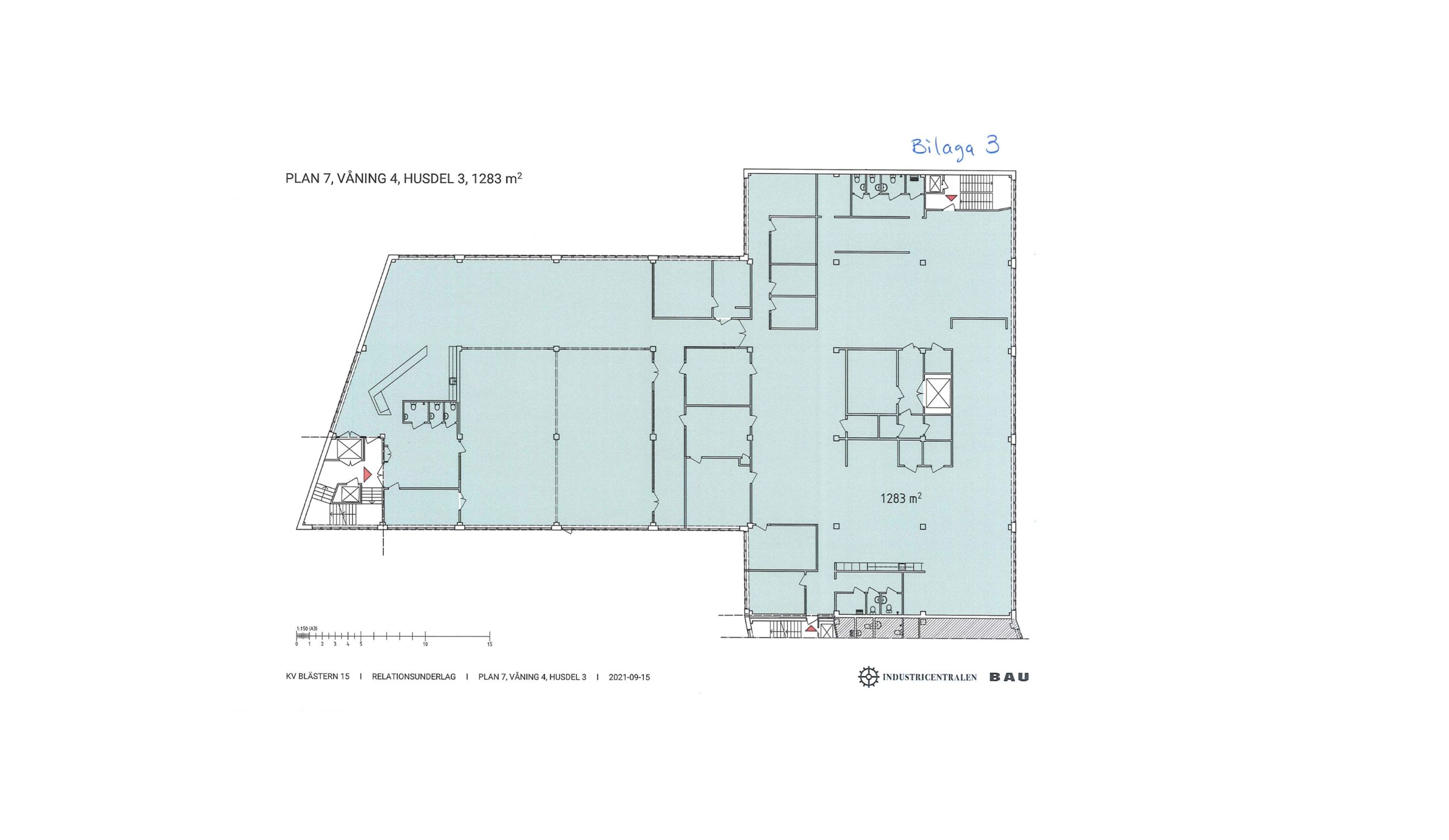
Area1283 m²
Våningsplan3 av 6
TillträdeOmgående eller enligt överenskommelse
KontraktÖverlåtelse
VentilationMekanisk ventilation med kyla
Internet Fiber
Byggnadsår1930
Ombyggnadsår2015

Industriell kontorslokal med bra ljusinsläpp i en ball miljö!

Välkommen till en unik kontorslokal med industriell charm! Här får du en inspirerande arbetsmiljö där råa material som synliga rör, stora fönster och högt i tak kombineras med moderna funktioner för att skapa en dynamisk och kreativ atmosfär. Lokalen om 1 283 kvm erbjuder öppna ytor och goda möjligheter för flexibel planlösning, vilket gör den perfekt för företag som värdesätter både design och funktionalitet. Det finns även två entréer, med lasthiss vid bägge upp till lokalen. Fastigheten är belägen i Vasastan med närhet till både kommunikationer och bra service, vilket gör den lättillgänglig för både medarbetare och kunder. Kontorslokalen passar perfekt för kreativa företag som söker en inspirerande och funktionell arbetsmiljö. Välkommen att boka en visning och upplev denna fantastiska kontorslokal!

T-bana:Grön linje från Sankt Eriksplan/Odenplan.
Bussar:Flera bussar som stannar i närheten samt buss nr 3 som stannar runt hörnet.
Pendeltåg:Pendeltåg från Odenplan

KONTAKTPERSONER

Gustav Hellströmer

Leasing Manager

070-963 46 71

gustav@newproperty.se

Marcus Christenson

Leasing Manager

070-774 07 09

marcus@newproperty.se

Garage
Cykelparkering