Östermalmsgatan 24 · 625 m²

Sitt i egna lokaler i det kreativa A-House!
TILLTRÄDE Enligt överenskommelse/Snarast
AVTAL 2027 12 31

OMGIVNING & KOMMUNIKATION

Bemannad reception, externa mötesrum, touchdownplatser i huset, utbildningssal, cykelgarage, omklädningsrum och mycket mer!

Area625 m²
Våningsplan5 av 5
TillträdeEnligt överenskommelse/Snarast
KontraktFörsta hand
VentilationMekanisk ventilation med kyla
Internet Fiber finns i lokalen
Ombyggnadsår2019

Sitt i egna lokaler i det kreativa A-House!

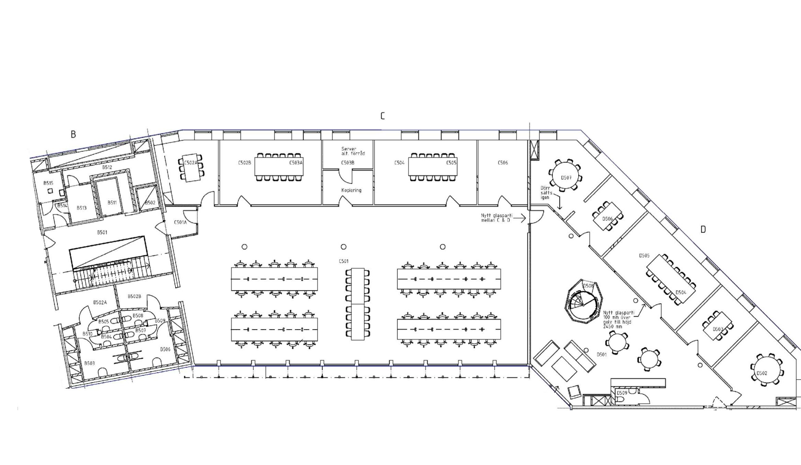
Vid Danderydsplan finner du det kreativa och omtalade A-House; https://ahouse.se/ ! Lokalen har en magisk industrikaraktär och det första slås av är fantastiska ljusinsläppet och den magiska utsikten mot Engelbrektskyrkan och takåsarna. Vid huvudentrén finner du en reception med en trevlig loungeyta som lämpar sig perfekt för spontana möten eller touchdownplatser, intill detta ligger det två representativa mötesrum samt en stor öppen kreativ yta som kan nyttja som arbetsyta eller en samlingsyta för hela bolaget. Utöver detta finns det ett stort öppet arbetslandskap för ca. 40 personer med ett flertal bra mötes, konferensrum och arbetsrum. Lokalen är mycket flexibel och det finns möjlighet att vara med och påverka planlösningen. Huset osar av kreativa bolag och flexibilitet. Det finns möjlighet att nyttja externa mötesrum, podstudios, utbildningssalar, restaurangkök m.m. För mer info - https://ahouse.se/

T-bana:Tekniska Högskolan
Bussar:Flertalet busslinjer i direkt närhet
Pendeltåg:Stockholm Östra (Roslagsbanan)

KONTAKTPERSONER

Marcus Christenson

Leasing Manager

070-774 07 09

marcus@newproperty.se

Cykelparkering
Garage