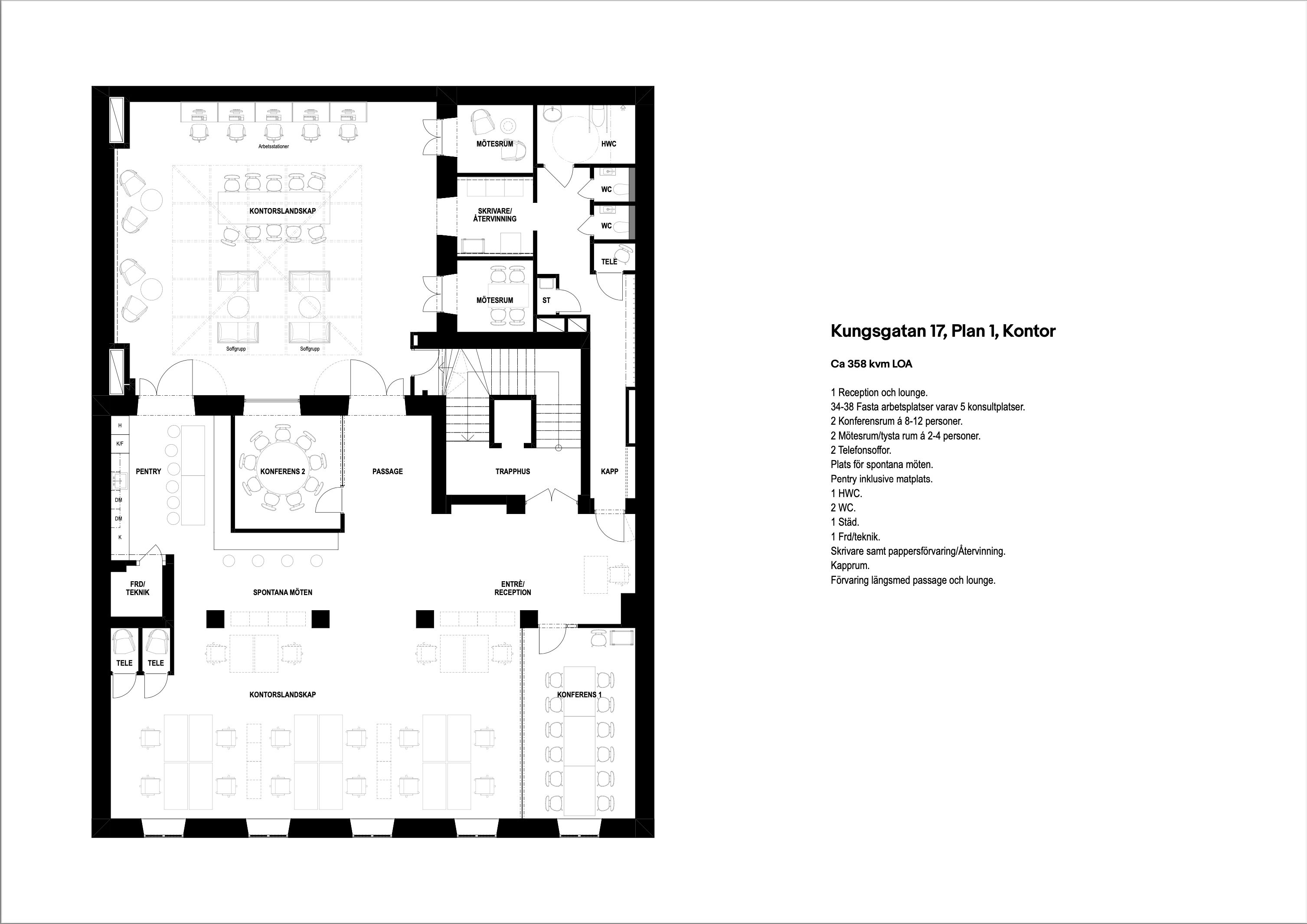
Kungsgatan 17 · 358 m²

Modern kontorslokal i en anrik fastighet!
TILLTRÄDE Q1 2026/Enligt ök
AVTAL Minst 3 årigt hyresavtal direkt med fastighetsägaren

OMGIVNING & KOMMUNIKATION

I gatuplan finns populära Holy Greens och Zzz Dreamscape Hotel – ett helt digitalt hotellkoncept, shopping, mat och kultur.

Area358 m²
Våningsplan1
TillträdeQ1 2026/Enligt ök
KontraktFörsta hand
VentilationMekanisk ventilation med kyla
Internet Fiber finns i fastigheten
Byggnadsår1921
Ombyggnadsår2019

Modern kontorslokal i en anrik fastighet!

Välkommen till denna fina byggnad som är ritad av Ivar Tengbom, på 1 trappa finner du denna trevliga kontorslokal om 358 kvm. Lokalen är välplanerad med två stora arbetsytor, den ena med utsikt över Kungsgatan och den andra med ett stort glasatrium ovanför som bidrar till en härligt ljusinsläpp. Intill entrén finner du en stort representativt konferensrum, det finns även 3 inbyggda telefon/teamsrum samt 3 mötesrum i varierande storlek. Lokalen binds ihop med ett öppna köket som ligger mellan de två arbetslandskapen. Utöver det smakfulla ytskikten, exklusiva materialvalet så håller lokalen en hög teknisk standard! Kontakta ansvariga mäklare för en visning!

T-bana:Hötorget och Östermalmstorg (uppgång Birger Jarlsgatan)
Bussar:Flertalet busslinjer kring Stureplan och Sveavägen

KONTAKTPERSONER

Marcus Christenson

Leasing Manager

070-774 07 09

marcus@newproperty.se

Sophie Borg

Leasing Manager

070-840 00 47

sophie@newproperty.se