Skeppargatan 27 · 309 m²

Möjlighet att vara med och anpassa en fin sekelskifteslokal!
TILLTRÄDE Enligt överenskommelse
AVTAL

OMGIVNING & KOMMUNIKATION

Area309 m²
Våningsplan1 av 5
TillträdeEnligt överenskommelse
Kontrakt
VentilationMekanisk ventilation
Internet Fiber
Byggnadsår1906
Ombyggnadsår

Möjlighet att vara med och anpassa en fin sekelskifteslokal!

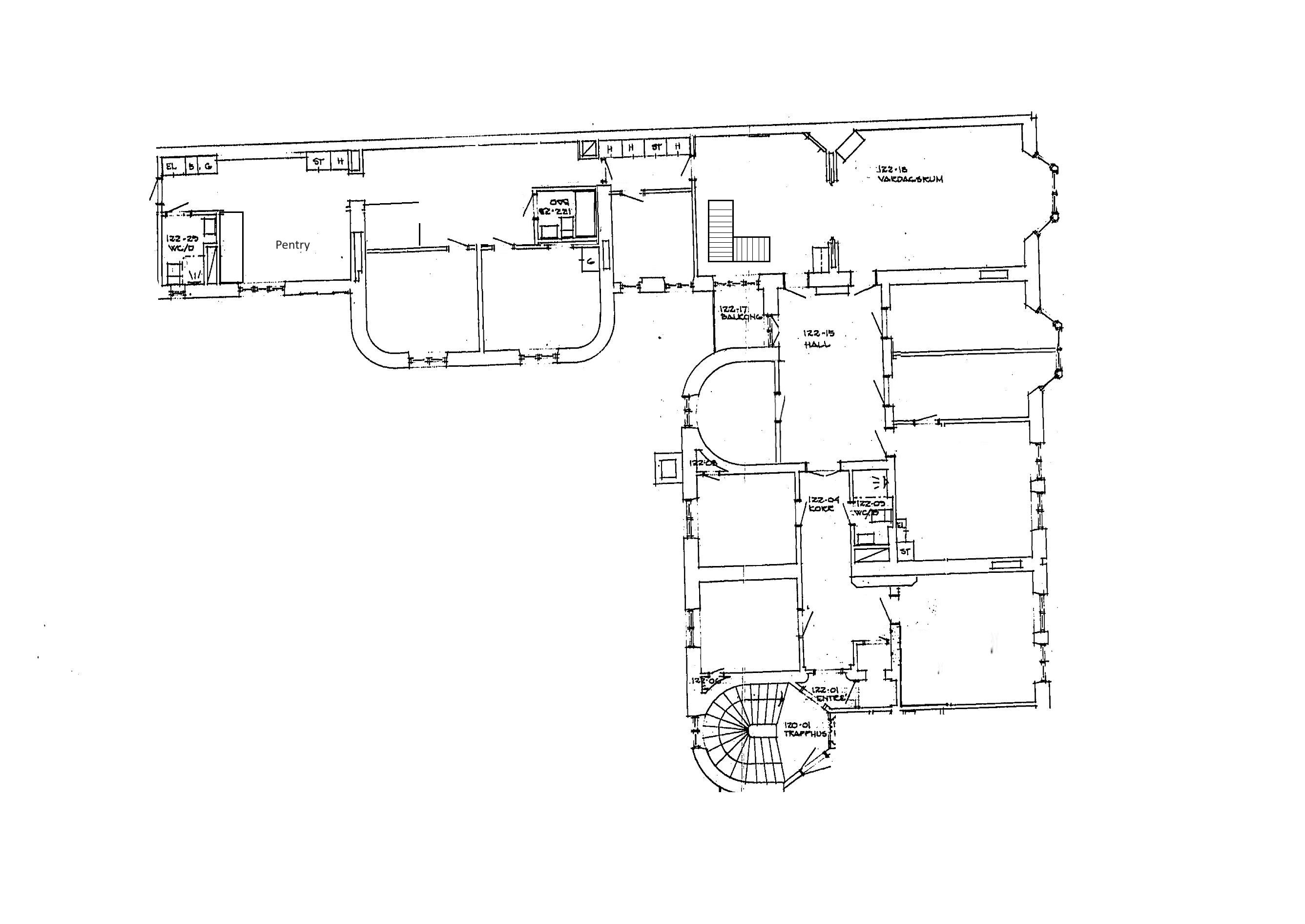
Lokalen ligger på 1 tr upp i huset med rum i fil ut mot Skeppargatan och ett par rum mot fastighetens fina innergård. Lokalen går som i ett L med pentry längst in i lokalen och erbjuder en bra intern yta. Ytan består till majoritet av våning 1 men har även ett extra utrymme i markplan med fönster mot innergården som förbinds via en interntrappa. Hyresvärden kan renovera lokalen i samråd med en ny hyresgäst. 3 st WC varav en större med dusch finns. Tillträde enligt överenskommelse. Avtalstid 3 år. Säkerhet enligt överenskommelse. Välkommen på visning!

T-bana:T-bana från Östermalmstorg

KONTAKTPERSON

Gustav Hellströmer

Leasing Manager

070-963 46 71

gustav@newproperty.se

Cykelparkering
Hiss