Klarabergsviadukten 70 · 1096 m²

Centralt kontor nära T-centralen
TILLTRÄDE Enligt ök
AVTAL

OMGIVNING & KOMMUNIKATION

För dig som vill hyra kontor i Stockholms bästa kommunikationsläge och i en fastighet som är ett välkänt varumärke i sig. World Trade Center erbjuder välplanerade lokaler med all tänkbar service, granne med Stockholms Centralstation. Kontoren är moderna, flexibla och effektiva för att passa er verksamhet – både idag och imorgon.

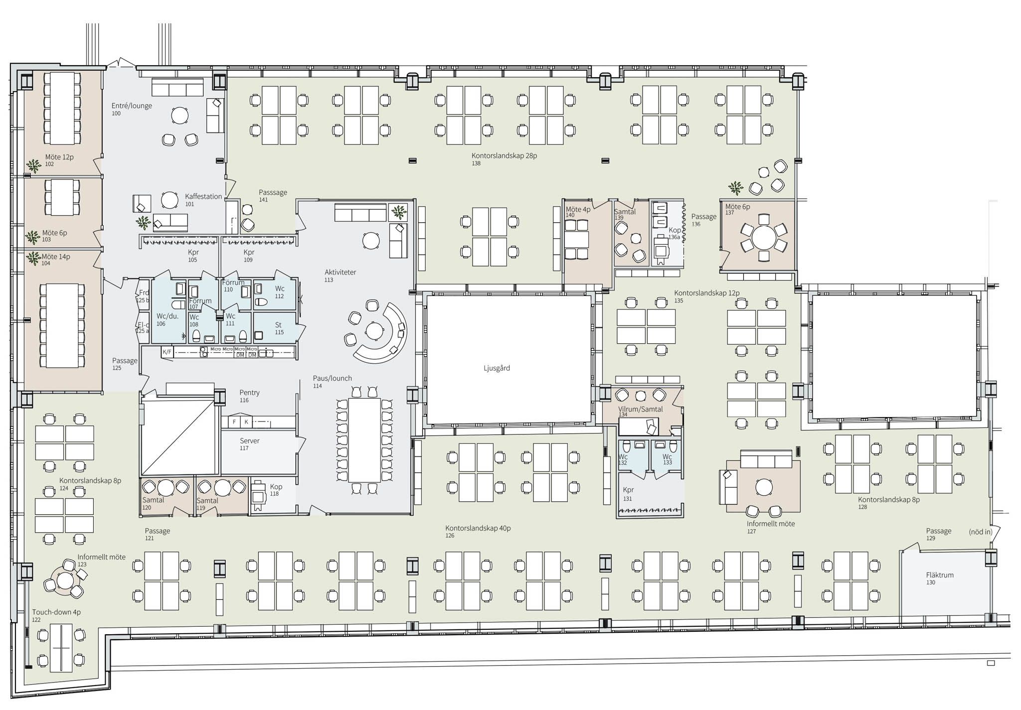
Area1096 m²
Våningsplan7 av 7
TillträdeEnligt ök
KontraktFörsta hand
Ventilation
Internet Ja
Byggnadsår1989
Ombyggnadsår

Centralt kontor nära T-centralen

Stort, luftigt kontor med utsikt över Klara kyrka och Hötorgsskraporna i centrala Stockholm. Lokalen inger nästan lite New York-känsla med dess sju våningar över markplan och fönster i tre väderstreck. Läget i den ikoniska fastigheten är så centralt som det kan bli – bussterminal, tåg, spårvagn och tunnelbana endast en hissresa ner från kontoret. All service ni kan tänka er finns inom gångavstånd.

T-bana:T-centralen
Bussar:Ja, flertalet bussar
Pendeltåg:Ja från Centralstationen

KONTAKTPERSON

Sophie Borg

Leasing Manager

070-840 00 47

sophie@newproperty.se

Gym
Garage
Cykelparkering
Internet
Parkering